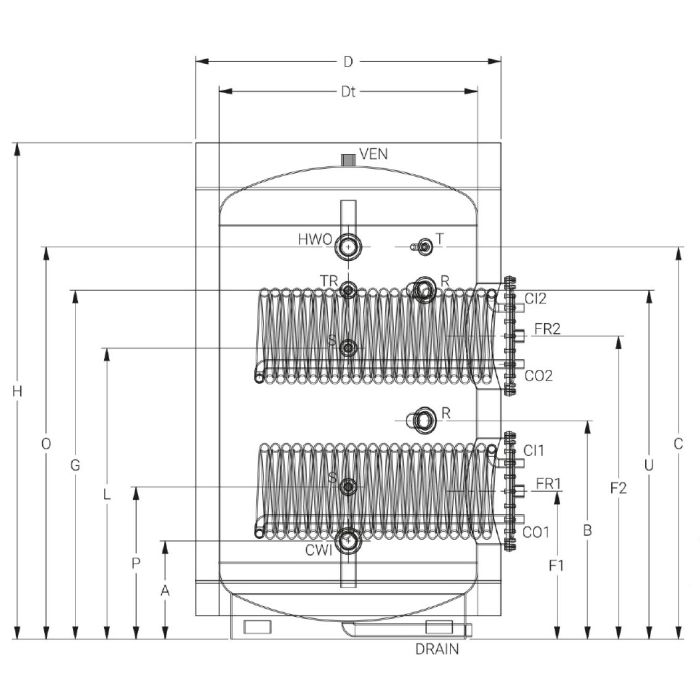
ΜΠΟΪΛΕΡ ΛΕΒΗΤΟΣΤΑΣΙΟΥ SLE 4000L ΧΩΡΙΣ ΕΝΑΛΛΑΚΤΗ RIVO ST
Περιγραφή
ΜΠΟΪΛΕΡ ΛΕΒΗΤΟΣΤΑΣΙΟΥ SLE 4000L ΧΩΡΙΣ ΕΝΑΛΛΑΚΤΗ RIVO ST
Τεχνικά Χαρακτηριστικά
| Μόνωση | Πολυουρεθάνη |
|---|---|
| Αντιδιαβρωτική προστασία | Υγρό Σμάλτο Τιτανίου |
| Έξοδος Ζεστού Νερού | 3" |
| Υποδοχή Ηλεκτρικής Αντίστασης | Ναι |
| Είσοδος Κρύου Νερού | 3" |
| Πίεση Λειτουργίας | 10 |
| Ανακυκλοφορία | 3" |
| Όγκος Περιεχομένου Νερού (lt) | 3960 |
| Προστασία από Ηλεκτρόλυση | Ράβδος Μαγνησίου |
| Χωρητικότητα (lt) | 4000 |
| Βάρος (kg) | 889 |
| Είδος | Boiler Λεβητοστασίου |
